About This Project

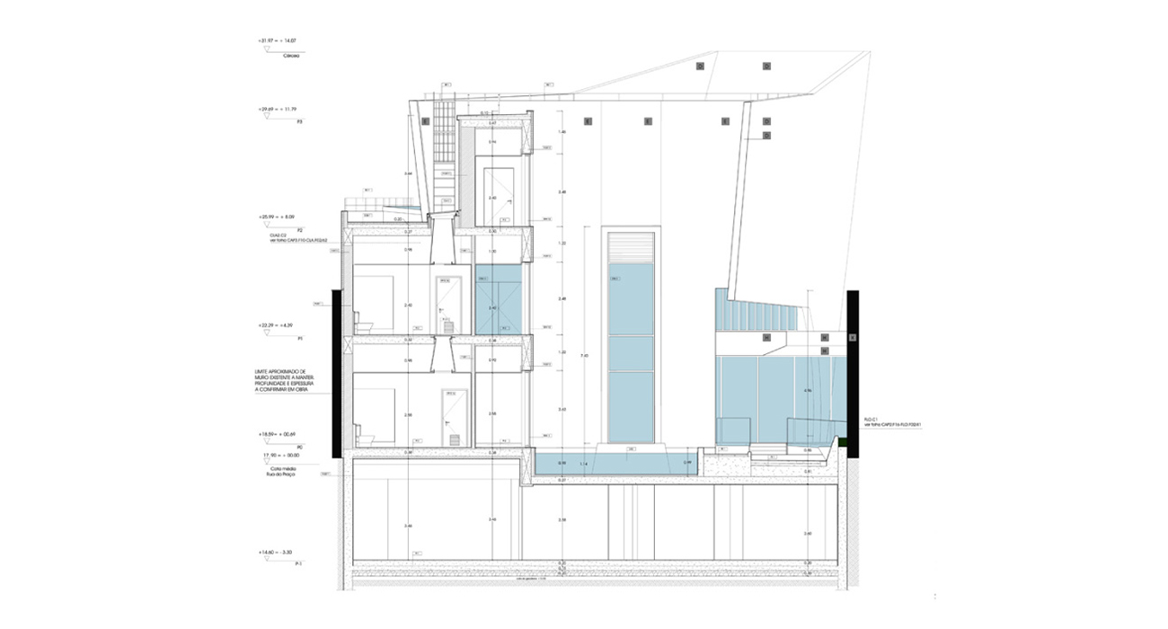
Project of the Ribeira Grande Municipal Archive in the city of Ribeira Grande in S. Miguel, Azores.

Client: Município da Ribeira Grande
Date: 2012

Category
Architecture
GDPR Cookie Consent with Real Cookie Banner